rue des Prés, 3671, Luxemburg
Preis:| Preis: | sur demande |
| Kategorie: | zu Verkaufen |
| Status: | aktiv |
| Objektart: | Grundstück |
| Losgröße: | 89 Acre |
| Gebäudegröße: | 89 Acre |
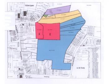
L’immobilière Waehnert, vous propose deux terrains constructible d’une contenance de 89,37 ares à vendre pour un projet immobilier c.à d. un terrain d’une superficie de 61.77 ares et l’autre de 27.60 ares.
Un projet comprenant la création et réalistion d’un lotissement structuré autour d’une trame verte et comportant des résidences et maisons.
Pour tous renseignements complémentaires, n’hésitez pas de contacter notre bureau pour recevoir une documentation complète sur mesure.
LIEU ET ENVIRONNEMENT
Kayl est une localité luxembourgeoise et le chef-lieu de la commune portant le même nom situé dans le canton d’Esch-sur-Alzette et le district de Luxembourg.
Les localités de Kayl et de Tétange sont situées au Sud du Grand-Duché de Luxembourg dans la région appelée depuis plus de cent ans "Le Bassin minier". La Commune de Kayl a une frontière commune avec la République Française et son territoire est délimité par les Communes de Rumelange, d'Esch/Alzette, de Schifflange, de Bettembourg et de Dudelange.

