rue de Kirchberg, 1858, Luxemburg
Preis:| Preis: | €1,138,977 |
| Kategorie: | zu Verkaufen |
| Status: | aktiv |
| Objektart: | Appartement |
| Bequemlichkeiten: | ascenseur, baies vitrées, cave, chauffage au sol, conciergerie, cuisine non équipée, espace buanderie, façade isolante, lingerie, parlophone, poste charge lente, protection anti solaire, salle de bain, salle de douche, terrasse, tondeuse électrique robot automatique, ventilation double flux, vidéophone, WC séparé |
| Wohnfläche: | 114 Acre |
| Heizung: | Ja |
| Schlafzimmer: | 3 |
| Badezimmer: | 2 |
| Etagen: | 1 |
« Les Hauts de Kirchberg » est un projet développé par le bureau d’architecture « BOITO ARCHITECTS » qui offre une parfaite variété de logements qui comportent 22 appartements de haut standing de 53.83 à 169.91 m2 de surface habitable, réparties sur 4 niveaux. Le projet se compose de deux résidences.
Les appartements sont reliés à une architecture sobre, moderne, contemporaine et élégante qui conjuguent qualité et confort de l’habitat et à une fonctionnalité sans reproches, étudiés avec soin et profite de matériaux de grande qualité. Ce qui permet également à ces deux résidences de bénéficier d’une classification énergétique A/B/A conciliant ainsi un haut niveau de performance énergétique aux meilleures conditions de confort.
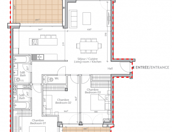
L'appartement en question est situé au 1ér étage et dispose d'un surface habitable de 114,47 m2 et d'une surface pondérée de 134,76 m2 et se compose comme suit:
- un hall d'entrée accueillant
- une cuisine ouverte non-équipée donnant sur la salle à manger et séjour avec accès sur la
terrasse d'une superficie de 26.34 m2
- un WC d'invité
- trois chambres à coucher avec accès sur la terrasse
- deux salles de bains
- une cave privative de 19.51 m2 situé au sous-sol
Le sous-sol dispose:
- d'un emplacement pour la machine à laver et sèche-linge dans la lingerie
- des emplacements pour vélos et voiture sont également prévus au sous-sol avec pour
chaque résident un poste charge lente pour véhicule électrique
Tous les appartements bénéficient de spacieuses terrasses bien orientées avec des grandes baies vitrées qui permettront d’apprécier une vue remarquable de la nature environnante et une abondante exposition au soleil, ainsi que de spacieuses caves. Ce projet d’exception, le premier projet résidentiel certifié BREEAM au Luxembourg, ne vous séduira non seulement par sa qualité de vie exceptionnelle, mais également par la conception des appartements.
D’autant plus les futurs occupants pourront profiter d’un service de conciergerie, afin de facilité la vie quotidienne.
Les prix affichés s’entendent avec 3 % de TVA comprise pour les propriétaires occupants.
Les emplacements du Parkings ne sont pas compris dans le prix affiché et pourront être achetés aux prix de 70.000.-€/par emplacement.
DESCRIPTION DES LIEUX:
En plein développement, le Kirchberg est tourné vers la nature et le bien-être de ses habitants, il est constitué d’un plateau situé dans la partie nord-est de la ville et il est aujourd’hui le cœur de la place financière internationale et regroupant les institutions européennes. Il est relié au centre-ville par le pont Grande-Duchesse Charlotte (pont rouge)
Haut lieu de finance à Luxembourg et regroupant les institutions européennes, ce quartier est également un modèle concernant l’urbanisme et l’architecture ainsi que l’art de la culture.
Endroit de loisirs, vous y trouverez toutes les commodités nécessaires à une vie pratique et sereine.
- Luxexpo / parc des expositions
- Utopolis / un cinéma multiplexe composé de 10 salles
- Auchan / centre commercial
- D’Coque / centre national de sport avec sa piscine olympique et culture
- Philharmonie / salle de concerts
- Mudam / Musée d’art moderne
- Draï Eechelen / Musée de la forteresse de Luxembourg
- Sport
- Restaurants / Bar

